Строительство каркасных домов в Краснодаре: Тепло, быстро и доступно – ваш дом мечты реально!
Строительство каркасных домов в Краснодаре: Тепло, быстро и доступно – ваш дом мечты реально!
Краснодар – город солнца и тепла, где спрос на комфортное и доступное жилье растет с каждым годом. Строительство каркасных домов в Краснодаре становится все более популярным, предлагая оптимальное сочетание цены, скорости возведения и энергоэффективности. В этой статье мы подробно рассмотрим преимущества каркасных домов, этапы строительства, стоимость и поможем вам выбрать надежную строительную компанию в Краснодаре для реализации вашей мечты о собственном доме!
Почему каркасные дома так популярны в Краснодаре?
Технологии строительства каркасных домов:
Существует несколько основных технологий строительства каркасных домов:
Преимущества и недостатки различных технологий:
Этапы строительства каркасного дома в Краснодаре:
Особенности строительства каркасных домов в Краснодаре:
Стоимость строительства каркасного дома в Краснодаре: цены 2024 и факторы, влияющие на стоимость
Стоимость строительства каркасного дома в Краснодаре зависит от следующих факторов:
В среднем, стоимость строительства каркасного дома в Краснодаре под ключ варьируется от [Укажите ориентировочные цены] рублей за квадратный метр.
Рекомендуется запросить смету у нескольких строительных компаний, чтобы сравнить цены и условия и выбрать наиболее выгодное предложение.
Как выбрать надежную строительную компанию для строительства каркасного дома в Краснодаре?
Выбор надежной строительной компании – это ключевой фактор успешного строительства каркасного дома. Вот несколько советов:
В заключение
Строительство каркасного дома в Краснодаре – это отличная возможность построить свой дом мечты быстро, экономично и качественно. Тщательно подойдите к выбору строительной компании, используйте качественные материалы и соблюдайте технологию строительства, чтобы ваш дом был теплым, надежным и долговечным!
Краснодар – город солнца и тепла, где спрос на комфортное и доступное жилье растет с каждым годом. Строительство каркасных домов в Краснодаре становится все более популярным, предлагая оптимальное сочетание цены, скорости возведения и энергоэффективности. В этой статье мы подробно рассмотрим преимущества каркасных домов, этапы строительства, стоимость и поможем вам выбрать надежную строительную компанию в Краснодаре для реализации вашей мечты о собственном доме!
Почему каркасные дома так популярны в Краснодаре?
- Экономичность: Каркасная технология позволяет значительно снизить затраты на строительство по сравнению с домами из кирпича или бетона.
- Скорость возведения: Каркасный дом можно построить в несколько раз быстрее, чем дом из традиционных материалов.
- Энергоэффективность: Каркасные дома отлично сохраняют тепло зимой и прохладу летом, что позволяет снизить затраты на отопление и кондиционирование. Это особенно важно в жарком климате Краснодара.
- Легкость конструкции: Каркасный дом не требует массивного фундамента, что также снижает стоимость строительства.
- Возможность реализации различных архитектурных решений: Каркасная технология позволяет строить дома любой сложности и конфигурации.
- Экологичность: При строительстве каркасных домов используются натуральные и экологически чистые материалы.
- Устойчивость к сейсмическим воздействиям: Каркасные дома обладают высокой устойчивостью к землетрясениям, что актуально для сейсмоопасных районов Краснодарского края.
Технологии строительства каркасных домов:
Существует несколько основных технологий строительства каркасных домов:
- Каркасно-рамочная технология: Сборка каркаса из отдельных элементов (стоек, балок, перемычек) непосредственно на строительной площадке.
- Каркасно-щитовая технология (панельно-каркасная): Сборка дома из готовых щитов (панелей), изготовленных в заводских условиях.
- SIP-панели (Structural Insulated Panel): Использование готовых СИП-панелей, состоящих из двух листов OSB и слоя утеплителя между ними.
Преимущества и недостатки различных технологий:
| Технология | Преимущества | Недостатки |
|---|---|---|
| Каркасно-рамочная | Возможность реализации сложных архитектурных решений, гибкость в планировке, относительно низкая стоимость. | Требует высокой квалификации строителей, более длительный срок строительства по сравнению с другими технологиями. |
| Каркасно-щитовая | Высокая скорость возведения, относительно низкая стоимость. | Ограничения по архитектурным решениям, зависимость от размеров готовых щитов. |
| SIP-панели | Очень высокая скорость возведения, отличная теплоизоляция, высокая прочность. | Требует точной геометрии, меньшая экологичность по сравнению с деревом (использование OSB), необходимость защиты от грызунов. |
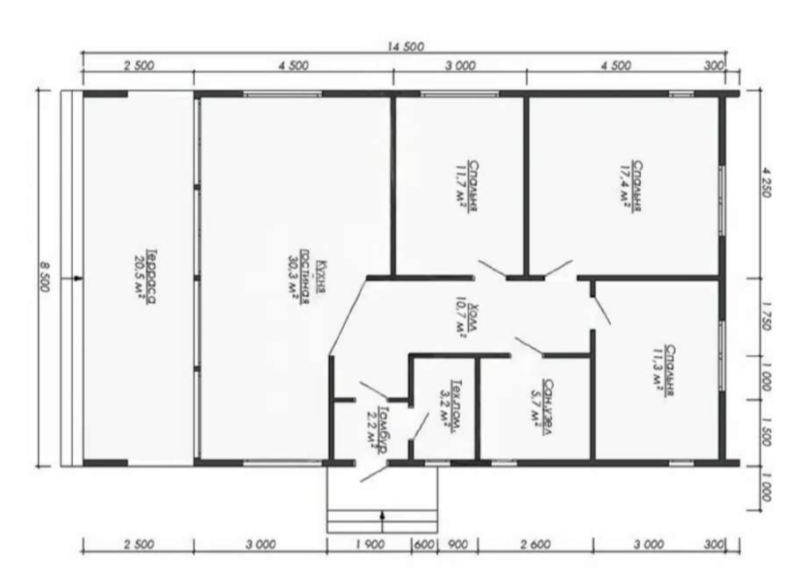
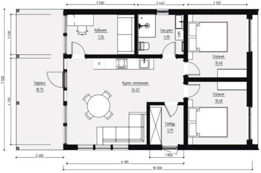
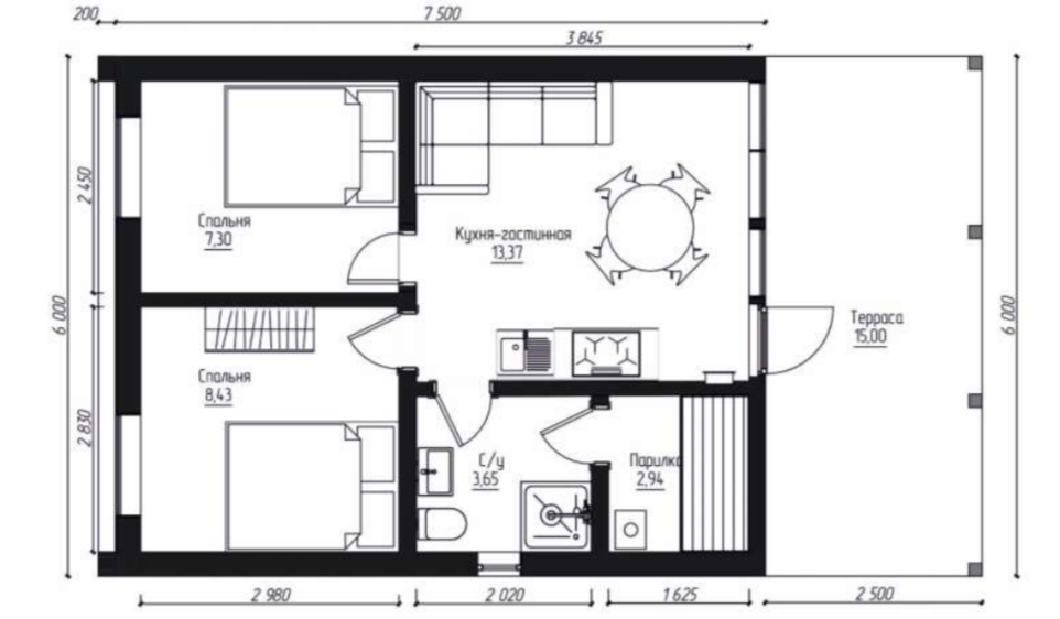
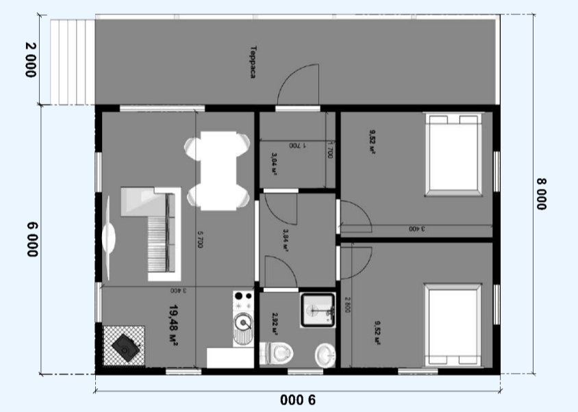
Этапы строительства каркасного дома в Краснодаре:
- Проектирование: Разработка архитектурного проекта и конструктивных решений с учетом климатических особенностей Краснодара и пожеланий заказчика.
- Подготовка участка: Очистка участка от растительности, выравнивание и разметка под фундамент.
- Устройство фундамента: Выбор типа фундамента зависит от типа грунта, уровня грунтовых вод и веса дома. Наиболее распространенные типы фундаментов для каркасных домов: ленточный, свайно-винтовой или плитный.
- Сборка каркаса: Сборка каркаса из деревянного бруса (или металлического профиля) в соответствии с проектом.
- Утепление стен, пола и кровли: Использование эффективных утеплителей (минеральная вата, эковата, пенополистирол) для обеспечения теплоизоляции дома.
- Устройство кровли: Монтаж кровельного покрытия (металлочерепица, гибкая черепица, профнастил и т.д.).
- Установка окон и дверей: Монтаж оконных и дверных блоков.
- Отделка фасада: Отделка фасада сайдингом, блок-хаусом, штукатуркой, облицовочным кирпичом или другими материалами.
- Прокладка инженерных коммуникаций: Монтаж систем отопления, водоснабжения, канализации и электроснабжения.
- Внутренняя отделка: Штукатурка стен, устройство полов, установка сантехники и электрооборудования.
Особенности строительства каркасных домов в Краснодаре:
- Климатические условия: Учет жаркого климата Краснодара при выборе утеплителя и материалов для отделки фасада. Важно обеспечить хорошую теплоизоляцию и вентиляцию, чтобы избежать перегрева дома летом.
- Защита от влаги: Обеспечение надежной гидроизоляции фундамента, стен и кровли, чтобы защитить дом от воздействия влаги.
- Защита от насекомых и грызунов: Обработка деревянных конструкций антисептиками и антипиренами для защиты от гниения, насекомых и возгорания.
- Выбор качественных материалов: Использование качественных пиломатериалов, утеплителей и отделочных материалов от проверенных производителей.
Стоимость строительства каркасного дома в Краснодаре: цены 2024 и факторы, влияющие на стоимость
Стоимость строительства каркасного дома в Краснодаре зависит от следующих факторов:
- Площадь дома: Чем больше площадь дома, тем выше стоимость строительства.
- Сложность проекта: Сложные архитектурные решения, нестандартные формы дома и наличие дополнительных элементов (например, террасы, балконы) увеличивают стоимость строительства.
- Выбранная технология строительства: Стоимость различных технологий может отличаться (каркасно-рамочная, каркасно-щитовая, СИП-панели).
- Тип фундамента: Стоимость различных типов фундаментов может значительно отличаться.
- Используемые материалы: Стоимость пиломатериалов, утеплителей, кровельных материалов, окон, дверей и отделочных материалов может существенно повлиять на общую стоимость строительства.
- Удаленность участка: Транспортные расходы могут повлиять на стоимость строительства, особенно если участок находится за пределами Краснодара.
- Сложность подъездных путей: Сложность подъездных путей к участку может увеличить затраты на доставку материалов и оборудования.
- Квалификация подрядчика: Опытные и квалифицированные строители обычно берут за свою работу больше, но и качество выполненных работ будет выше.
- Инженерные коммуникации: Подведение и подключение инженерных коммуникаций (водоснабжение, канализация, электричество, газ) также увеличивают стоимость строительства.
В среднем, стоимость строительства каркасного дома в Краснодаре под ключ варьируется от [Укажите ориентировочные цены] рублей за квадратный метр.
Рекомендуется запросить смету у нескольких строительных компаний, чтобы сравнить цены и условия и выбрать наиболее выгодное предложение.
Как выбрать надежную строительную компанию для строительства каркасного дома в Краснодаре?
Выбор надежной строительной компании – это ключевой фактор успешного строительства каркасного дома. Вот несколько советов:
- Изучите отзывы клиентов: Почитайте отзывы о различных компаниях в интернете. Обратите внимание на репутацию компании, качество выполненных работ, соблюдение сроков и отзывчивость менеджеров.
- Попросите предоставить портфолио: Посмотрите примеры выполненных работ. Это позволит вам оценить уровень профессионализма и качество строительства.
- Узнайте об опыте работы: Узнайте, сколько лет компания работает на рынке строительства каркасных домов, и какой опыт имеют ее сотрудники.
- Проверьте наличие лицензий и сертификатов: Убедитесь, что компания имеет все необходимые лицензии и сертификаты на выполнение строительных работ.
- Запросите смету: Запросите подробную смету на выполнение работ. Смета должна содержать информацию о стоимости материалов, транспортных расходах, оплате работы строителей и других затратах.
- Заключите договор: Обязательно заключите договор с выбранной компанией. В договоре должны быть четко прописаны сроки выполнения работ, стоимость, гарантийные обязательства и ответственность сторон.
- Посетите офис компании: Посетите офис компании, чтобы лично пообщаться с менеджерами и убедиться в их компетентности.
- Посетите строящийся объект: По возможности, посетите строящийся объект компании, чтобы оценить качество работы и организацию процесса.
- Узнайте о гарантийном обслуживании: Узнайте, какие условия гарантийного обслуживания предоставляет компания и как быстро они реагируют на возникающие проблемы.
В заключение
Строительство каркасного дома в Краснодаре – это отличная возможность построить свой дом мечты быстро, экономично и качественно. Тщательно подойдите к выбору строительной компании, используйте качественные материалы и соблюдайте технологию строительства, чтобы ваш дом был теплым, надежным и долговечным!